地点
- 区/旗舰: Nusajaya
- 镇: SiLC
- 资产状态 出售
- 价钱 RM14,000,000
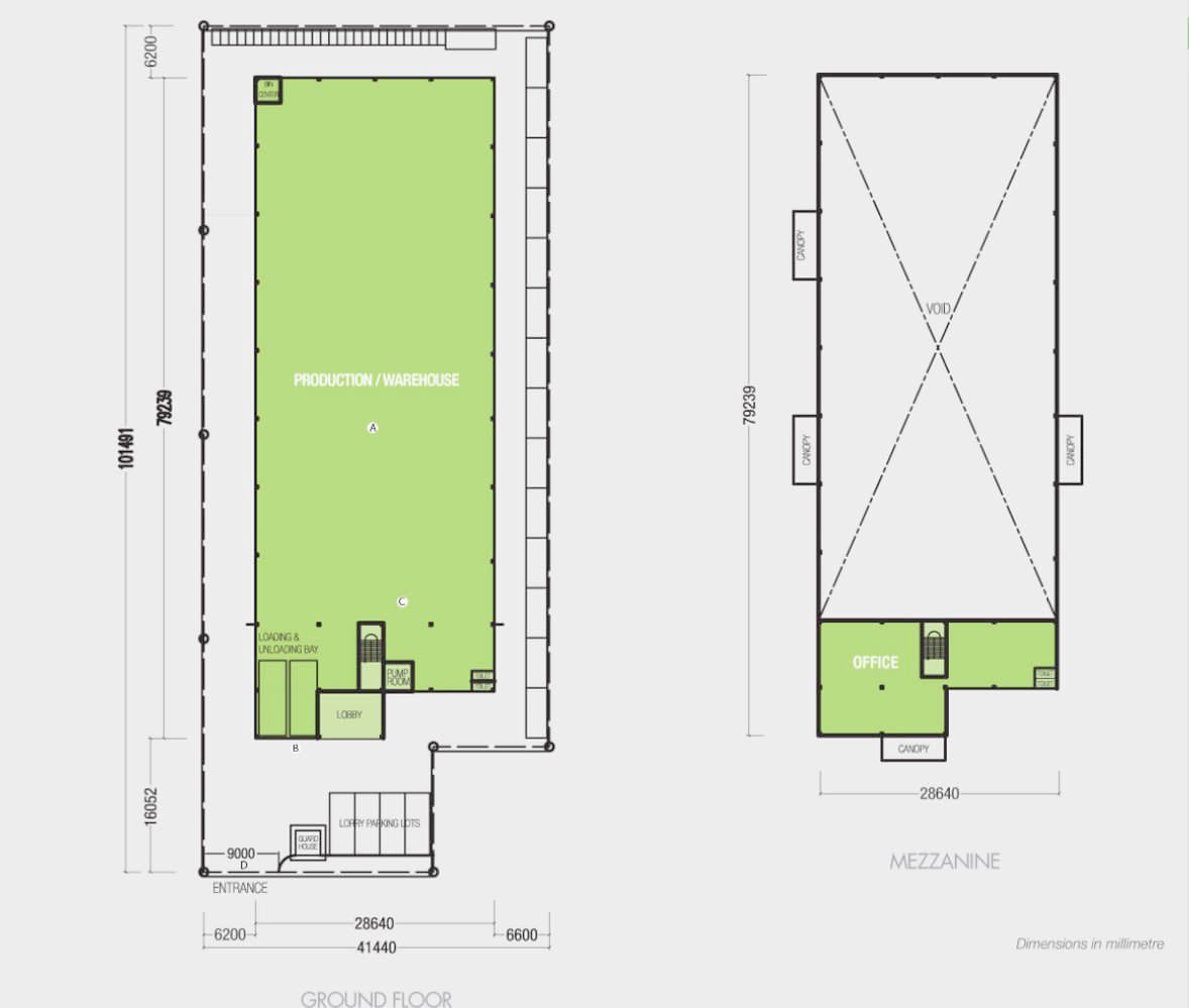
- 建立 28,200 SqFt
- 土地面积 45,288 SqFt
- 资产类型 独立工厂
- 特定类型 中排
- 任期 永久
- 尺寸(尺) 136 x 333
- 行业类型 中行业
- 电源 600
- 天花板的高度 9
(RM496 /sqft;Built-up)
(RM309 /sqft;Land)
Silc Industrial Park @ Jalan Silc 2/x, Gelang Patah
> Kingpark Type A
> 1.5 storey Detached Factory
> Land size : 136 x 333 sqft
> Built up : 94 x 260 (28200 sqft)
> Ceiling height : 9 Meter
> Power supply : 600 amp
> Medium Industry
Remark : Currently Tenanted, tenancy until year 2024.

